- 软件大小:1.94M
- 软件语言:中文
- 软件类型:国产软件
- 软件类别:免费软件 / 电子图书
- 更新时间:2016-08-02 17:27
- 运行环境:WinAll, WinXP
- 软件等级:

- 软件厂商:
- 官方网站:http://www.downcc.com
顶好评:50%
踩坏评:50

2.24M/中文/3.6
9.99M/中文/8.2
4.31M/中文/7.1
3.95M/中文/8.0
92.73M/中文/4.5
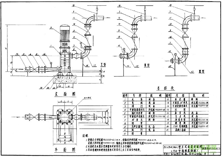
95ss103图集是一款水泵安装图集,小编主要为大家带来了DL型立式水泵安装图、DL型立式水泵规格及安装尺寸表、DL型立式水泵安装设备材料表等相关知识,欢迎有需要的朋友到绿色资源网下载使用!
95ss103图集适用于有隔振要求的泵站或建筑物泵房内的立式水泵安装工程。


请描述您所遇到的错误,我们将尽快予以修正,谢谢!
*必填项,请输入内容