- 软件大小:4.05M
- 软件语言:中文
- 软件类型:国产软件
- 软件类别:免费软件 / 电子图书
- 更新时间:2016-06-01 10:51
- 运行环境:WinAll, WinXP
- 软件等级:

- 软件厂商:
- 官方网站:http://www.downcc.com
顶好评:50%
踩坏评:50

5.17M/中文/5.0
3.65M/中文/3.3
84.02M/中文/10.0
84.02M/中文/10.0
6.06M/中文/10.0
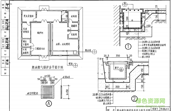
陕09j11图集介绍了十类附属建筑,和有通用性的构造详图,是陕西省09j系列建筑图集之一。本图集主要适用于民用建筑,和一些特殊要求的建筑。快来绿色资源网下载吧!
设计内容
本图集包括变配电间、锅炉房、汽车库、水泵房、加油站、加气站、柴油发电机房、蓄电池室、煤气调压站、花房、垃圾站等十类附属建筑的构造通用详图,供设计人选用。
适用范围
本图集适用于一般民用与工业建筑的附属建筑中有特殊要求的部位和有通用性的构造详图。



请描述您所遇到的错误,我们将尽快予以修正,谢谢!
*必填项,请输入内容