- 软件大小:10.51M
- 软件语言:中文
- 软件类型:国产软件
- 软件类别:免费软件 / 电子图书
- 更新时间:2016-03-23 13:39
- 运行环境:WinAll, WinXP
- 软件等级:

- 软件厂商:
- 官方网站:http://www.downcc.com

2.24M/中文/3.6
9.99M/中文/8.2
4.31M/中文/7.1
3.95M/中文/8.0
92.73M/中文/4.5
10J113-1内隔墙轻质条板(一)图集是由国家住宅与居住环境工程技术研究中心和中国建筑标准设计研究院联合主编,本图集代替了03J113图集,适用于新建、改建、扩建...绿色资源网这里分享的是pdf格式的10j1131图集免费下载,需要的拿走吧。
本图集适用于新建、改建、扩建的居住建筑、公共建筑和一般工业建筑,图集包括8种类型轻质条板隔墙:1.轻混凝土空心条板内隔墙;2.玻纤增强水泥条板内隔墙;3.玻纤增强石膏条板内隔墙;4.硅镁加气条板内隔墙;5.粉煤灰泡沫水泥条板内隔墙;6.植物纤维复合条板内隔墙;7.聚苯颗粒水泥复合夹芯条板内隔墙;8.纸蜂窝夹芯复合板内隔墙。本图集的特点是:1.内容符合新的标准要求;2.补充和调整了部分构造做法。3.图集内容充实、条理清楚、选用方便。




目录1
总说明3
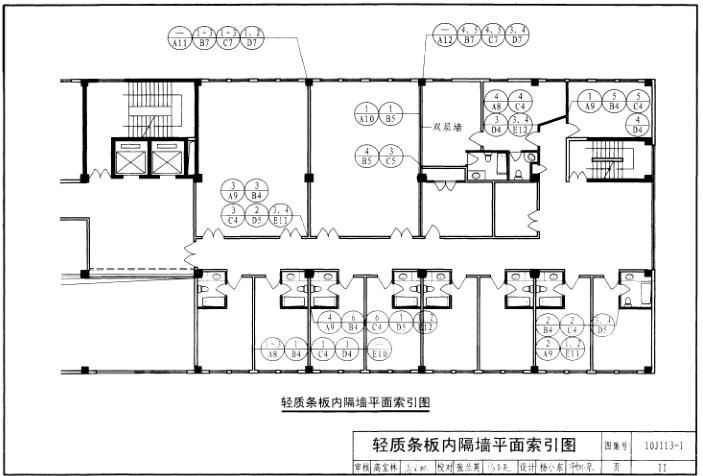
轻质条板内隔墙平面索引图11
轻质条板内隔墙立面、剖面索引图12
轻质条板内隔墙门窗洞口立面及剖面索引图13
轻质条板内隔墙竖向接板立面图14
轻质条板内隔墙横向加固、竖向接板构造节点15
条板连接件及预埋件16
轻质条板内隔墙洗面盆、吊柜安装平面、立面图17
轻质条板内隔墙电气开关、插座立面及敷线节点18
A型轻集料混凝土条板、水泥条板、石膏条板内隔墙
轻混凝土条板、水泥条板、石膏条板内隔墙说明A1
轻混凝土条板规格(企口)A3
轻混凝土条板规格(平口)A4
水泥条板规格A5
石膏条板规格A6
单、双层轻混凝土、水泥、石膏条板内隔墙平面图A7
轻混凝土、水泥、石膏条板连接节点A8
轻混凝土、水泥、石膏条板与墙、柱连接节点A11
轻混凝土、水泥、石膏条板与梁、板连接节点A14
轻混凝土、水泥、石膏条板与楼地面连接节点A16
C型企口轻混凝土条板加固节点A18
轻混凝土、水泥、石膏条板抗震构造节点A19
轻混凝土、水泥、石膏条板与门窗框连接节点A20
轻混凝土、水泥、石膏条板与门窗框上板连接节点A22
石膏条板与门窗框连接节点A23
轻混凝土、水泥、石膏条板预埋件、吊挂件节点A24
轻混凝土、水泥、石膏条板电气开关、插座安装节点A25
轻混凝土、水泥、石膏条板分户隔墙保温做法A26
B型硅镁加气水泥条板、粉煤灰泡沫条板内隔墙
硅镁条板、泡沫水泥条板内隔墙说明B1
硅镁、泡沫水泥条板规格B2
硅镁、泡沫水泥条板内隔墙平面图B3
硅镁、泡沫水泥条板连接节点B4
双层硅镁、泡沫水泥条板连接节点B5
硅镁、泡沫水泥条板与墙、柱连接节点B7
硅镁、泡沫水泥条板与梁、板连接节点B8
硅镁、泡沫水泥条板与地面连接做法节点B9
硅镁、泡沫水泥条板隐蔽钢筋连接节点B10
硅镁、泡沫水泥条板抗震构造节点B11
硅镁、泡沫水泥条板与门窗框连接节点B12
硅镁、泡沫水泥条板预埋件、吊挂件节点B14
硅镁、泡沫水泥条板电气开关、插座安装节点B15
硅镁、泡沫水泥条板分户隔墙保温做法B16
C型植物纤维复合条板内隔墙
植物纤维复合条板内隔墙说明C1
植物纤维条板规格C2
植物纤维条板内隔墙平面图C3
植物纤维条板连接节点C4
双层植物纤维条板连接节点C5
植物纤维条板与墙、柱连接节点C7
植物纤维条板与梁、板连接节点C8
植物纤维条板与地面连接、踢脚做法节点C9
植物纤维条板抗震构造节点C10
植物纤维条板与门窗框连接节点C11
植物纤维条板预埋件、吊挂件节点C12
植物纤维条板墙上设备吊挂安装节点C13
植物纤维条板电气开关、插座安装节点C14
植物纤维条板分户隔墙保温做法C15
D型聚苯颗粒水泥夹芯复合条板内隔墙
聚苯颗粒水泥夹芯复合条板内隔墙说明D1
聚苯颗粒水泥条板规格D2
聚苯颗粒水泥条板内隔墙平面图D3
聚苯颗粒水泥条板连接节点D4
双层聚苯颗粒水泥条板连接节点D6
聚苯颗粒水泥条板与墙、柱连接节点D7
聚苯颗粒水泥条板与钢结构梁、柱连接节点D9
聚苯颗粒水泥条板与梁、板连接节点D10
聚苯颗粒水泥条板与梁、板、楼地面连接节点D11
聚苯颗粒水泥条板抗震构造节点D12
聚苯颗粒水泥条板内隔墙门窗洞口立面D14
聚苯颗粒水泥条板与门窗框连接节点D15
聚苯颗粒水泥条板预埋件、吊挂件节点图D16
聚苯颗粒水泥条板电气开关、插座安装节点D17
E型纸蜂窝夹芯复合条板内隔墙
纸蜂窝夹芯复合条板内隔墙说明E1
纸蜂窝复合条板内隔墙门窗洞口立面示意图E5
纸蜂窝复合条板内隔墙门窗立面龙骨排列E6
纸蜂窝复合条板规格E7
纸蜂窝复合条板内隔墙平面图E9
单层纸蜂窝复合条板连接节点E10
单层纸蜂窝复合条板与梁、板、墙、柱连接节点E13
单层纸蜂窝复合条板与门窗连接及吊挂节点E14
双层纸蜂窝复合条板连接节点E15
双层纸蜂窝复合条板与梁、板、墙、柱连接节点E16
双层纸蜂窝复合条板与门窗连接节点E17
单、双层纸蜂窝复合条板连接节点E18
纸蜂窝复合条板内隔墙电气管线安装示意图E19
附录
轻质条板外观质量、技术性能、施工、安装验收要求F1
相关技术资料127
请描述您所遇到的错误,我们将尽快予以修正,谢谢!
*必填项,请输入内容